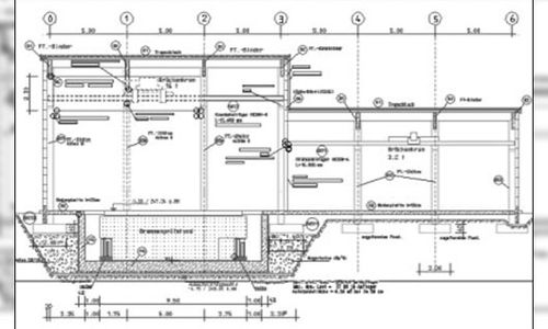
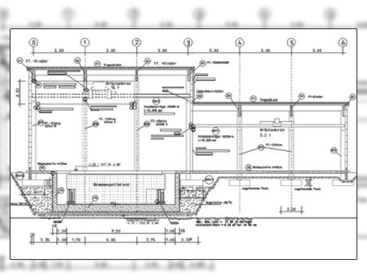
Vorfertigung, also die Fertigung von Bauteilen nicht an der vorgesehenen Stelle im Bauwerk, und nachfolgende Montage ist eine Produktionsmethode, die so alt ist wie der Stahlbetonbau selbst.

Unter den dortigen Herstellungsbedingungen wird in der Regel eine höhere Qualität erreicht und insgesamt die Bauzeit verkürzt.

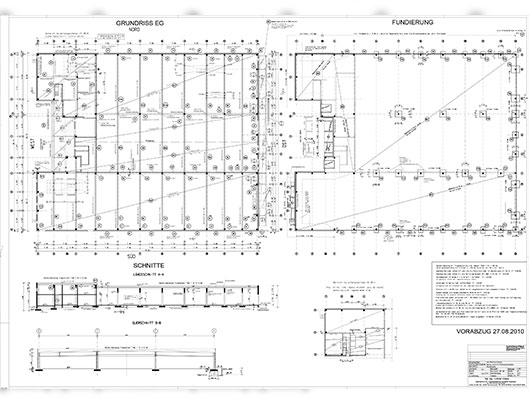
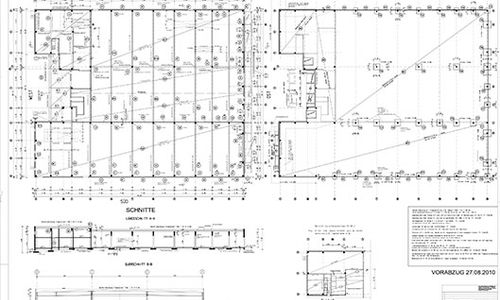
Ein Gebäude im Hinblick auf eine industrielle Werksfertigung hin zu konstruieren, erfordert bestimmte Prinzipien bei der Planung und statisch konstruktiven Ausarbeitung.

Wir bieten auch hier alle Leistungsphasen der HOAI Teil VIII an.

Schwerpunkt ist dabei der Industrie- u. Gewerbebau, wie z.B.:

  • Produktions- und Lagerhallen
  • Bürogebäude
  • Autohäuser
  • Werkstätten
  • Mehrgeschossige Wohngebäude
  • Sporthallen
  • Ausführungsplanung von Fertigteilen
  • Umbauten und Anbauten an Wohnhäusern
  • Sonstige private Vorhab